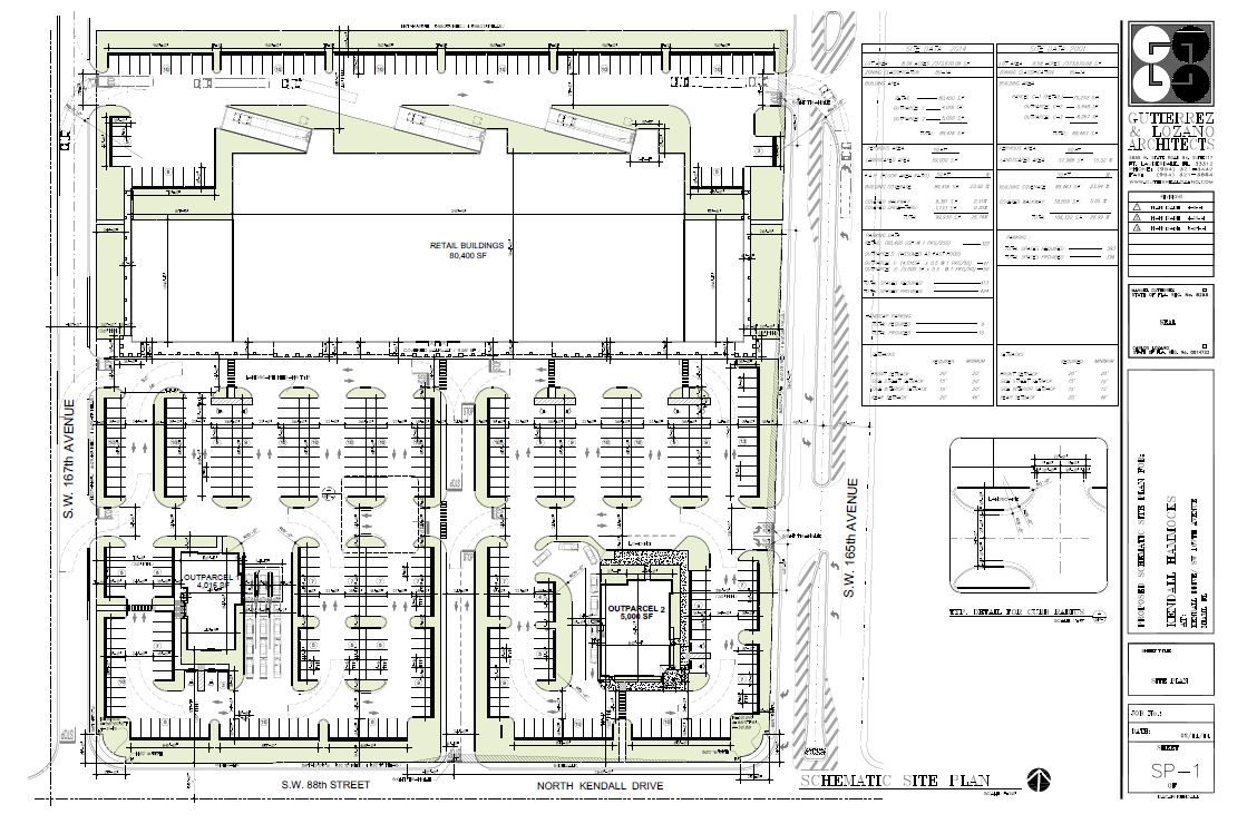
KENDALL 8 ACRES

SW 167 Avenue & SW 88 Street, Miami,FL

Located on SW 167 Avenue and SW 88 Street (Kendall Dr) one mile east of ST RD 997 (Krome Ave). Within a 3 mile radius there is a population density of approximately 205,000 households and holds a great position as the Miami area expands westward.

Request Info

Request More Info

Please fill out the form below to learn more about our location.